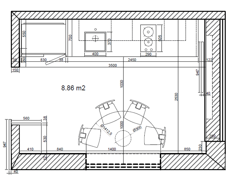
Virtuvė - Telšiai - 8.86m2
Pagal kliento užsakymą atliktas virtuvės plano atnaujinimas: peržiūrėtas ir optimizuotas erdvės išplanavimas, numatytas funkcionalesnis baldų bei buitinės technikos išdėstymas. Projekte sukurta ir suplanuota nauja lango anga sienoje, kurioje anksčiau lango nebuvo, taip suteikiant daugiau natūralios šviesos ir vizualinės erdvės pojūtį. Klientui pateikti detalūs brėžiniai, techniniai sprendimai bei fotorealistinės vizualizacijos, padedančios aiškiai įsivaizduoti galutinį rezultatą.


















Kontaktai
Susisiekite su manimi
dizainere@aldonadesign.lt
+370 680 58991
© 2025 aldonadesign.lt visos teisės saugomos.

